3100 St. Pölten-Ochsenburg

Naturverbundenes Wohnen in Ochsenburg!

EDLAUER Immobilien
EDLAUER Immobilien
EDLAUER Immobilien
EDLAUER Immobilien
Icon Fläche 89.6 m²
Icon Zimmer 3 Zimmer
Icon Außenfläche 18.8 m²

Beschreibung

WILLKOMMEN IN DER NATUR!

Die Neumühle ist ein Ort, an dem Sie die Möglichkeit vorfinden, der Natur beim Wohnen ursprünglich zu begegnen. Sie können Ihre Freiheit individuell ausleben, kleine Wunder in der Natur entdecken, Ihr eigenes Gemüse ernten, Fische angeln oder einfach nur die Bienen beobachten, wie sie täglich am hauseigenen Honig arbeiten. Umgeben von natürlichen Materialien in allen Wohn- und Außenbereichen, kann man in den Mietwohnungen der Neumühle mit und von der Natur leben – ein echtes Erlebnis!

PHILOSOPHIE:

In Zusammenarbeit mit Architekten, Landschaftsplanern und Pionieren der biologisch dynamischen Landwirtschaft wurde ein Konzept realisiert, welches die Neumühle in eine natürliche Landschaft einbettet und die vorhandenen Ressourcen nutzt. Der älteste Teil des Gebäudes stammt aus dem 16. Jahrhundert und es wurden neun Wohnungen zum Mieten konzipiert, welche den Ansprüchen der heutigen Zeit entsprechen. Damit die Mieter einerseits Wege und Zeit sparen und andererseits Ihre Lebensqualität verbessern, wurde großes Augenmerk auf nachhaltiges Wohnen gelegt. Ein Hofladen bei den Fischteichen bietet ausschließlich frische und natürliche Produkte aus biologischer Eigenproduktion. Interessierte haben die Möglichkeit, im angemieteten Selbstversorgergarten ein Hochbeet anzumieten um eigenes Gemüse in biologischem Anbau zu produzieren.

DETAILBESCHREIBUNG:

Lage:
Die Wohnung befindet sich nur einige Autominuten von St. Pölten und St. Georgen entfernt, wo sich alle benötigten Nahversorger befinden. Ein Bus fährt vor dem Objekt regelmäßig über St. Georgen bzw. Harland ins Zentrum von St. Pölten. Die Wohnung liegt neben einem Bach und ist über eine kleine Brücke erreichbar. Richtung Westen bietet das Grundstück einen Ausblick über Teichanlagen und Waldflächen. Im Frühjahr 2015 wurde westlich eine biologische Anlage errichtet, welche es ermöglicht, Güter des täglichen Bedarfs, wie zum Beispiel Fisch, Fleisch, Gemüse zu erwerben oder auch ein eigenes Hochbeet anzumieten.

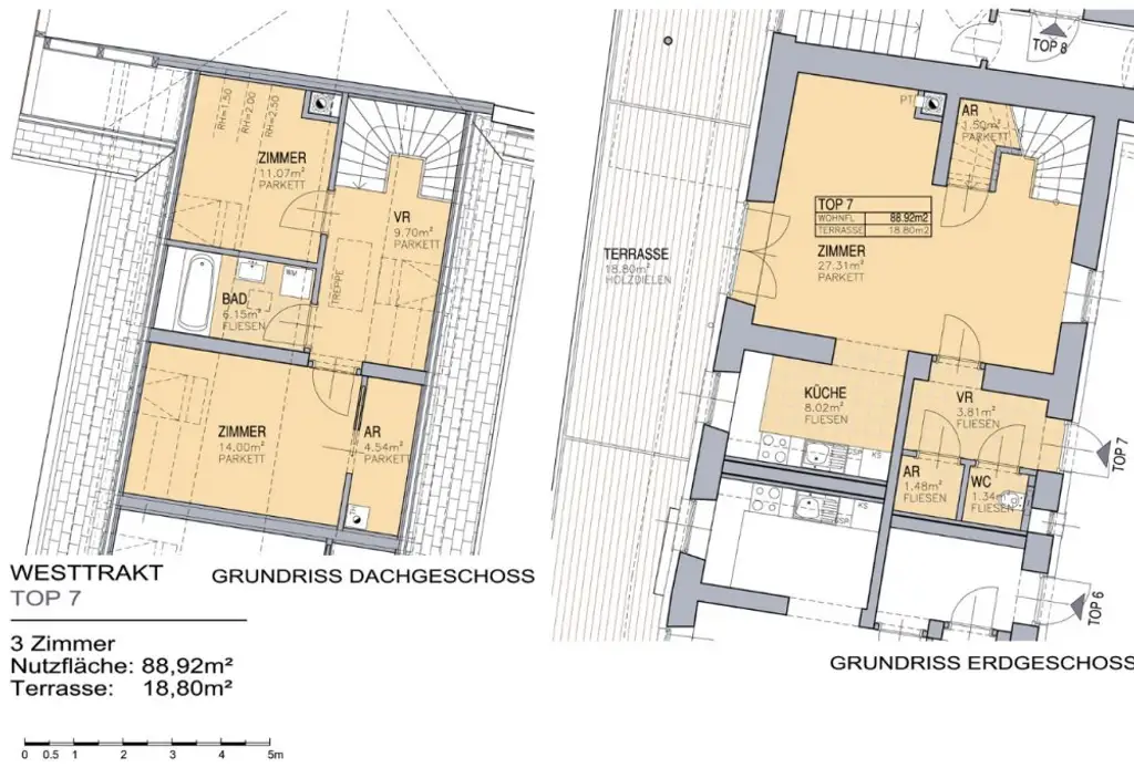
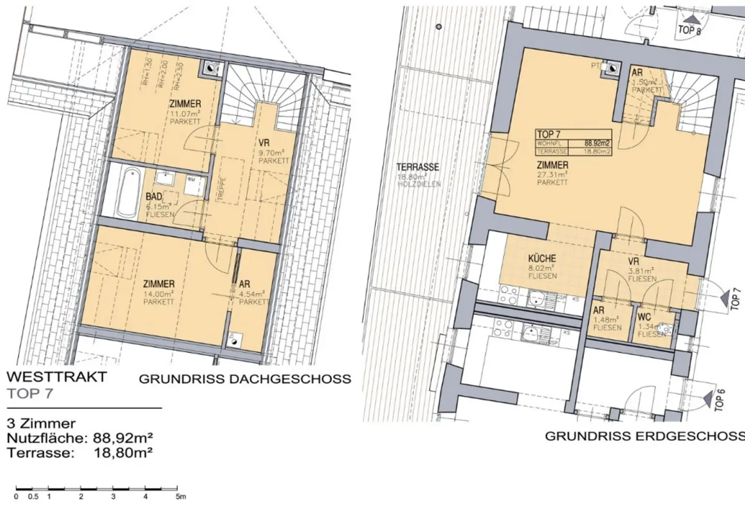
Raumprogramm:
Erdgeschoß: Vorraum, 2 Abstellräume, WC, 1 Zimmer, Küche, Terrasse.
Obergeschoß: Vorraum, 2 Zimmer, Badezimmer, Abstellraum.

Ausstattung:
- Massiver Holzparkett bzw. Natur-Steinböden
- 3-fachverglaste Holzfenster
- Hochwertige Küche mit Siemens-Geräten
- Kamin

Beschreibung:
Das im Jahr 2014 nach aktuellen Standards sanierte Anwesen beinhaltet insgesamt 9 Wohneinheiten. Gebäude und Wohnung sind in einem dementsprechend sehr guten und energetischen Zustand.

Selbstversorgungsmöglichkeit:
- Anmietung eines eigenen Hochbeets möglich (nach Verfügbarkeit)
- Gratis Hochbeet für das erste Mietjahr (nach Verfügbarkeit)
- Hofladen mit Fleisch, Fisch, Gemüse und vielem mehr
- Erholungsmöglichkeit in ruhigem Ambiente

Beheizung:
Die Beheizung und das Warmwasser der Wohnung erfolgt mittels Gas-Kombi-Therme.
Die verbrauchsabhängigen Kosten für Heizung und für die Warmwasseraufbereitung werden direkt mit dem Energieversorgungsunternehmen verrechnet.

Vertragskonditionen:
Der Mietvertrag wird auf einen Zeitraum von 4 Jahren befristet. Eine Kündigung seitens des Mieters ist frühestens nach Ablauf eines Jahres unter Einhaltung einer dreimonatigen Kündigungsfrist möglich.

Kosten:
Die angegebene monatliche Miete beinhaltet neben dem Hauptmietzins auch die Inventarmiete (Küche) sowie die Betriebskosten und die gesetzliche Umsatzsteuer. Die verbrauchsabhängigen Kosten für Heizung/Warmwasseraufbereitung und Strom werden direkt mit dem Energieversorgungsunternehmen verrechnet.
Prekaristisch wird ein Einlagerungsabteil sowie ein Kfz-Abstellplatz mitvermietet.

Nebenkosten:
Kaution: EUR 4.700,00

Hinweis auf Naheverhältnis:
Wir weisen darauf hin, dass zum Vermieter ein wirtschaftliches Naheverhältnis besteht (wiederholte Beauftragungen).

Besichtigungen:
Eine Besichtigung der Wohnung ist nach vorheriger Terminvereinbarung jederzeit möglich.

Energieausweis:
Ausstellungsdatum: 07.03.2025
Heizwärmebedarf (HWB): 66,6 kWh/m²a (Klasse C)
Gesamtenergieeffiziensfaktor (fGEE): 0,83 (Klasse A)

Objektnummer: 6177
Bitte halten Sie bitte bei telefonischen Auskünften diese Objektnummer bereit.

Um unsere Angebote noch besser Ihren Vorstellungen anpassen zu können bitten wir Sie im Zuge Ihrer Anfrage auch um die Bekanntgabe Ihrer Suchkriterien. Dies ermöglicht es uns schnell das für Sie passende Objekt zu finden.

Wir ersuchen aus organisatorischen Gründen (Datenbankpflege) und aufgrund unserer Nachweispflicht gegenüber dem Abgeber um vollständige Angabe Ihrer Kontaktdaten einschließlich Vor- und Zuname, Adresse und Telefonnummer. Wir ersuchen um Verständnis, dass wir Anfragen mit unvollständigen Kontaktdaten nicht bearbeiten können.
Der Schutz Ihrer personenbezogenen Daten ist uns ein großes Anliegen. Wir verwenden Ihre Daten für die Interessenten- und Kundenverwaltung im Rahmen der Immobilienvermittlung (z.B. für die Zusendung von Immobilienangeboten). Die Rechtsgrundlage dafür bildet – sofern nicht eine gesetzliche Grundlage vorliegt – ein abgeschlossener Vertrag bzw. eine Vertragsanbahnung (Vermittlungsvertrag). Die Weitergabe personenbezogener Daten erfolgt ohne ausdrückliche separate Einwilligung nur insoweit, wie es für Vertragsabwicklungen erforderlich ist. Keinesfalls werden Ihre Daten zu Werbezwecken o.ä. weitergegeben. Unsere Mitarbeiter und unsere Dienstleistungsunternehmen sind zur Verschwiegenheit und zur Einhaltung der Datenschutzbestimmungen verpflichtet. Lesen Sie mehr in unserer Datenschutzerklärung auf unserer Homepage.

Lage und Verkehrs­anbindung

Lage:
zwischen St. Pölten und St. Georgen, Ochsenburg
René HOMMEN

Ihr Ansprech­partner

René HOMMEN

Immobilienmaklerassistent

Preisdetails

Gesamtmiete:
1.195,92 €
Nettomiete:
801,47 €
Betriebskosten netto:
235,73 €
Umsatzsteuer:
108,72 €
Kaution:
4.700,00 €

Fakten

Objektnummer:
202/06177 — Reserviert
Objekttyp:
Wohnung
Terrasse:
1
Terrassenfläche:
18,8 m²
Wohnfläche:
89,55 m²
Zimmer:
3
Verfügbarkeit:
Reserviert

Ausstattungen

Abstellraum
Zentralheizung

Energieeffizienz

HWB:
66,6 kWh/(m²*a)
HWB Klasse:
C
fGEE:
0,83
fGEE Klasse:
A
NIX DABEI?
NIX DABEI?
JETZT VORMERKEN LASSEN!

Ihre Wunschimmobilie steht noch nicht zur Vermittlung? Das Richtige war noch nicht dabei? Lassen Sie sich jetzt von uns vormerken und genießen Sie ab sofort Ihren exklusiven Informationsvorsprung.

Jetzt kontaktieren
Logo ARE
Logo Ehrenschiedsgericht NÖ
Logo ÖVI
Logo RICS