3100 St. Pölten

Neubauwohnung mit Terrasse und Loggia in zentraler Lage!

Rückansicht
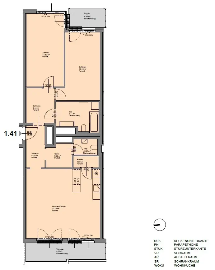
Top 1.41 (2)
Stiegenhaus
Straßenansicht
Icon Fläche 99.1 m²
Icon Zimmer 3 Zimmer
Icon Bad 1 Bad
Icon Außenfläche 14.2 m²

Beschreibung

Mitten in der Landeshauptstadt St.Pölten, zwischen Bahnhof und Universitätsklinikum, kann Ihr Wohntraum wahr werden!

Leben sie in einem nagelneuen, hochwertigen Wohnhaus, in attraktiver Lage; Sie werden sich mit Sicherheit wohlfühlen.
Die Wohnung ist mit einer attraktiven, funktionellen Küche samt E-Geräten, tollen Sanitäranlagen und weitgehend mit Parkettboden ausgestattet.
Die Fußbodenheizung erfolgt über Fernwärme und ist daher besonders umweltfreundlich und bequem und verspricht ein höchstmaß an Wohlfühnqualität.

In unmittelbarer Nähe zur Wohnungen finden Sie zahlreiche Geschäfte und Infrastruktureinrichtungen. Auch die Erreichbarkeit ist hervorragend, egal ob Individual- oder öffentlicher Verkehr.

Die Wohnung Top 41 mit 99,10 m² liegt im Dachgeschoß – ein Lift ist selbstverständlich vorhanden – und verfügt über folgendes Raumprogramm:
Vorraum, Garderobe, Wohnküche samt Küchenblock, 2 Schlafzimmer, Schrankraum, Badezimmer mit WC, WC Abstellraum, Terrasse, Loggia, Kellerabteil.

Autoabstellplätze in der Tiefgarage können bei Bedarf angemietet werden.
Die Kosten hierfür belaufen sich auf ca. EUR 80,-- zzgl. Umsatzsteuer.
(Kaution: ca. 3 Bruttomonatsmieten, Vergebührungskosten: abhängig von der Mietdauer, Abwicklungskosten f. HV: EUR 200,00)

Monatliche Kosten:
Die angegebene monatliche Miete beinhaltet neben den Hauptmietzins die Betriebskosten und die gesetzliche Umsatzsteuer.
Die verbrauchsabhängigen Kosten für den Strom, Heizung und Warmwasseraufbereitung werden direkt mit dem Energieversorgungsunternehmen verrechnet.

Vertragskonditionen:
Der Mietvertrag wird auf 5 Jahre befristet abgeschlossen. Der Mieter hat das gesetzliche Kündigungsrecht, den Mietvertrag frühestens nach Ablauf eines Jahres unter Einhaltung einer 3-monatigen Kündigungsfrist zum Monatsletzten aufzukündigen. Die frühestmögliche Kündigung durch den Mieter kann daher per Monatsletzten des 16. Mietmonates erfolgen.

Nebenkosten:
Kaution: 3 Brutto-Monatsmieten

Verfügbarkeit:
Die Wohnung steht ab Dezember 2025 zur Verfügung.

Energiekennzahl:
Heizwärmebedarf (HWB) 32,18 kWh/m²/a. (Einstufung Energieklasse B)
Gesamtenergieeffizienz-Faktor (fGEE) von 0,83. (Einstufung Energieklasse A)

Hinweis auf Naheverhältnis:
Wir weisen darauf hin, dass zum Vermieter ein wirtschaftliches Naheverhältnis besteht (wiederholte Beauftragungen).

Objektnummer: 8076
Halten Sie bitte bei telefonischen Auskünften diese Objektnummer bereit.

Gerne stehen wir Ihnen für weitere Auskünfte oder zur Vereinbarung eines Besichtigungstermins zu Verfügung.

Um unsere Angebote noch besser Ihren Vorstellungen anpassen zu können bitten wir Sie im Zuge Ihrer Anfrage auch um die Bekanntgabe Ihrer Suchkriterien. Dies ermöglicht es uns schnell das für Sie passende Objekt zu finden.

Wir ersuchen aus organisatorischen Gründen (Datenbankpflege) und aufgrund unserer Nachweispflicht gegenüber dem Abgeber um vollständige Angabe Ihrer Kontaktdaten einschließlich Vor- und Zuname, Adresse und Telefonnummer. Wir ersuchen um Verständnis, dass wir Anfragen mit unvollständigen Kontaktdaten nicht bearbeiten können. Der Schutz Ihrer personenbezogenen Daten ist uns ein großes Anliegen. Wir verwenden Ihre Daten für die Interessenten- und Kundenverwaltung im Rahmen der Immobilienvermittlung (z.B. für die Zusendung von Immobilienangeboten). Die Rechtsgrundlage dafür bildet – sofern nicht eine gesetzliche Grundlage vorliegt – ein abgeschlossener Vertrag bzw. eine Vertragsanbahnung (Vermittlungsvertrag). Die Weitergabe personenbezogener Daten erfolgt ohne ausdrückliche separate Einwilligung nur insoweit, wie es für Vertragsabwicklungen erforderlich ist. Keinesfalls werden Ihre Daten zu Werbezwecken o.ä. weitergegeben. Unsere Mitarbeiter und unsere Dienstleistungsunternehmen sind zur Verschwiegenheit und zur Einhaltung der Datenschutzbestimmungen verpflichtet. Lesen Sie mehr in unserer Datenschutzerklärung auf unserer Homepage.

Lage und Verkehrs­anbindung

Lage:
Krankenhaus, Bahnhof, Innenstadt
René HOMMEN

Ihr Ansprech­partner

René HOMMEN

Immobilienmaklerassistent

Preisdetails

Gesamtmiete:
1.342,03 €
Nettomiete:
934,62 €
Betriebskosten netto:
285,41 €
Umsatzsteuer:
122,00 €
Kaution:
4.026,09 €

Fakten

Objektnummer:
202/08076
Objekttyp:
Wohnung
Terrasse:
1
Loggia:
1
Terrassenfläche:
9,66 m²
Loggia Fläche:
4,45 m²
Wohnfläche:
99,1 m²
Zimmer:
3
Badezimmer:
1
Toilette:
1
Baujahr:
2020
Neubau:
Ja
Verfügbarkeit:
Verfügbar

Ausstattungen

Barrierefrei
Fahrstuhl
Kabel/Satelliten-TV
Abstellraum
Fußbodenheizung

Energieeffizienz

HWB:
32,18 kWh/(m²*a)
HWB Klasse:
B
fGEE:
0,83
fGEE Klasse:
A
NIX DABEI?
NIX DABEI?
JETZT VORMERKEN LASSEN!

Ihre Wunschimmobilie steht noch nicht zur Vermittlung? Das Richtige war noch nicht dabei? Lassen Sie sich jetzt von uns vormerken und genießen Sie ab sofort Ihren exklusiven Informationsvorsprung.

Jetzt kontaktieren
Logo ARE
Logo Ehrenschiedsgericht NÖ
Logo ÖVI
Logo RICS