3170 Hainfeld

Schöne 3-Zimmer-Wohnung mit Balkon!

Wohnküche (1)
Wohnküche (2)
Wohnküche (3)
Wohnküche (4)
Icon Fläche 78.2 m²
Icon Zimmer 3 Zimmer
Icon Bad 1 Bad

Beschreibung

Schöne 3-Zimmer-Wohnung mit Balkon!

KURZBESCHREIBUNG: gute öffentliche Verkehrsanbindung, Einkaufsmöglichkeiten und Infrastruktur im nahen Umkreis.

DETAILBESCHREIBUNG:

Lage:
Das Wohnhaus befindet sich nahe dem Zentrum von Hainfeld. Erwähnenswert ist die ausgezeichnete Verkehrsanbindung. Sowohl in öffentlicher als auch privater Hinsicht ist die Wohnung sehr gut gelegen. Diese gute Lage spiegelt sich auch auf den Bereich Infrastruktur und Einkaufsmöglichkeiten wieder.

Öffentliche Verkehrsmittel:
Wenige Gehminuten von der Wohnung entfernt befindet sich der Bahnhof Hainfeld.

Hinweis:
Eine neue Küche ist bestellt und wird den Mietern zur Verfügung gestellt.

Beschreibung:
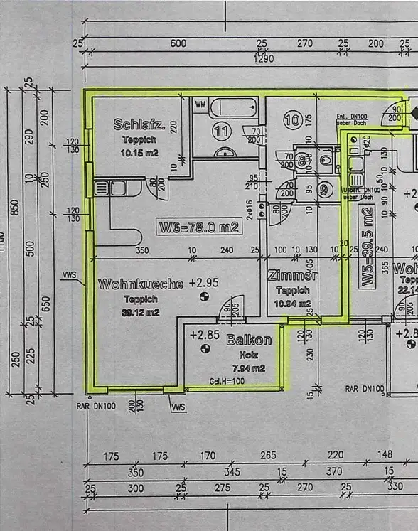
Die im 1. Obergeschoß (ohne Lift) befindliche Mietwohnung besitzt eine Gesamtnutzfläche von ca. 78,11 m² und gliedert sich in:
Vorzimmer, Wohnküche, 2 Zimmer, Badezimmer, WC, Abstellraum und Balkon.

Beheizung/Warmwasseraufbereitung:
Die Beheizung der Wohnung sowie die Warmwasseraufbereitung erfolgt mittels Gas-Etagenheizung.

Vertragskonditionen:
Der Mietvertrag wird auf einen Zeitraum von 5 Jahren befristet. Eine Kündigung seitens des Mieters ist frühestens nach Ablauf eines Jahres unter Einhaltung einer dreimonatigen Kündigungsfrist möglich.

Kosten:
Die angegebene monatliche Miete versteht sich inklusive Betriebskosten und der gesetzlichen Umsatzsteuer.
Die verbrauchsabhängigen Kosten für Heizung, Warmwasseraufbereitung und Strom werden direkt mit dem Energieversorgungsunternehmen verrechnet.

Nebenkosten:
Kaution: EUR 2.700,00

Verfügbarkeit:
Das Objekt steht ab sofort zur Verfügung.

Besichtigung:
Eine Besichtigung ist nach vorheriger Terminvereinbarung selbstverständlich möglich.

Energieausweis:
Ausstellungsdatum: 05.05.2025
Heizwärmebedarf (HWB): 102,7 kWh/m²a (Klasse D)
Gesamtenergieeffiziensfaktor (fGEE): 1,43 (Klasse C)

Hinweis auf Naheverhältnis:
Wir weisen darauf hin, dass zum Vermieter ein wirtschaftliches Naheverhältnis besteht (wiederholte Beauftragungen).

Objektnummer: 8180
Halten Sie bitte bei telefonischen Auskünften diese Objektnummer bereit.

Gerne stehen wir Ihnen für etwaige Auskünfte oder zur Vereinbarung eines Besichtigungstermins zu Verfügung.

Um unsere Angebote noch besser Ihren Vorstellungen anpassen zu können bitten wir Sie im Zuge Ihrer Anfrage auch um die Bekanntgabe Ihrer Suchkriterien. Dies ermöglicht es uns schnell das für Sie passende Objekt zu finden.

Wir ersuchen aus organisatorischen Gründen (Datenbankpflege) und aufgrund unserer Nachweispflicht gegenüber dem Abgeber um vollständige Angabe Ihrer Kontaktdaten einschließlich Vor- und Zuname, Adresse und Telefonnummer. Wir ersuchen um Verständnis, dass wir Anfragen mit unvollständigen Kontaktdaten nicht bearbeiten können. Der Schutz Ihrer personenbezogenen Daten ist uns ein großes Anliegen. Wir verwenden Ihre Daten für die Interessenten- und Kundenverwaltung im Rahmen der Immobilienvermittlung (z.B. für die Zusendung von Immobilienangeboten). Die Rechtsgrundlage dafür bildet – sofern nicht eine gesetzliche Grundlage vorliegt – ein abgeschlossener Vertrag bzw. eine Vertragsanbahnung (Vermittlungsvertrag). Die Weitergabe personenbezogener Daten erfolgt ohne ausdrückliche separate Einwilligung nur insoweit, wie es für Vertragsabwicklungen erforderlich ist. Keinesfalls werden Ihre Daten zu Werbezwecken o.ä. weitergegeben. Unsere Mitarbeiter und unsere Dienstleistungsunternehmen sind zur Verschwiegenheit und zur Einhaltung der Datenschutzbestimmungen verpflichtet. Lesen Sie mehr in unserer Datenschutzerklärung auf unserer Homepage.

Lage und Verkehrs­anbindung

Lage:
Nähe Ortskern.

Grundriss

René HOMMEN

Ihr Ansprech­partner

René HOMMEN

Immobilienmaklerassistent

Preisdetails

Gesamtmiete:
894,93 €
Nettomiete:
624,88 €
Betriebskosten netto:
188,69 €
Umsatzsteuer:
81,36 €

Fakten

Objektnummer:
202/08180
Objekttyp:
Wohnung
Wohnfläche:
78,11 m²
Zimmer:
3
Badezimmer:
1
Toilette:
1
Verfügbarkeit:
Verfügbar

Ausstattungen

Abstellraum
Etagenheizung

Energieeffizienz

HWB:
102,7 kWh/(m²*a)
HWB Klasse:
D
fGEE:
1,43
fGEE Klasse:
C
NIX DABEI?
NIX DABEI?
JETZT VORMERKEN LASSEN!

Ihre Wunschimmobilie steht noch nicht zur Vermittlung? Das Richtige war noch nicht dabei? Lassen Sie sich jetzt von uns vormerken und genießen Sie ab sofort Ihren exklusiven Informationsvorsprung.

Jetzt kontaktieren
Logo ARE
Logo Ehrenschiedsgericht NÖ
Logo ÖVI
Logo RICS